How Can We Help?

Please fill in the form below.

Available

4 3 1 Detached House

Features

Contemporary four-bedroom detached home finished to a high standard
Stylish open-plan kitchen/living space with bi-fold doors and log burner
Principal bedroom with en suite; three further bedrooms and family bathroom
Herringbone oak flooring, bespoke staircase, and quality fitted storage throughout
Landscaped rear garden with timber garden room and driveway parking
Planning permission for detached double garage and separate adjoining building plot for a new two-storey dwelling

Summary

A superb four-bedroom detached family home of contemporary quality, enhanced by the rare advantage of an adjoining building plot with full planning permission for a detached dwelling (Ref: 24/03029/FUL). Located in a quiet cul-de-sac within easy reach of Wem town centre, this property combines modern living with significant development potential. The existing house also benefits from planning permission for a detached double garage (Ref: 24/03028/FUL).

Description

Exceptional Four-Bedroom Detached Home with Adjoining Building Plot
9 Sycamore Drive, Wem, SY4 5AQ - Offers in the region of £585,000

A superb four-bedroom detached family home of contemporary quality, enhanced by the rare advantage of an adjoining building plot with full planning permission for a detached dwelling (Ref: 24/03029/FUL). Located in a quiet cul-de-sac within easy reach of Wem town centre, this property combines modern living with significant development potential. The existing house also benefits from planning permission for a detached double garage (Ref: 24/03028/FUL).

Accommodation
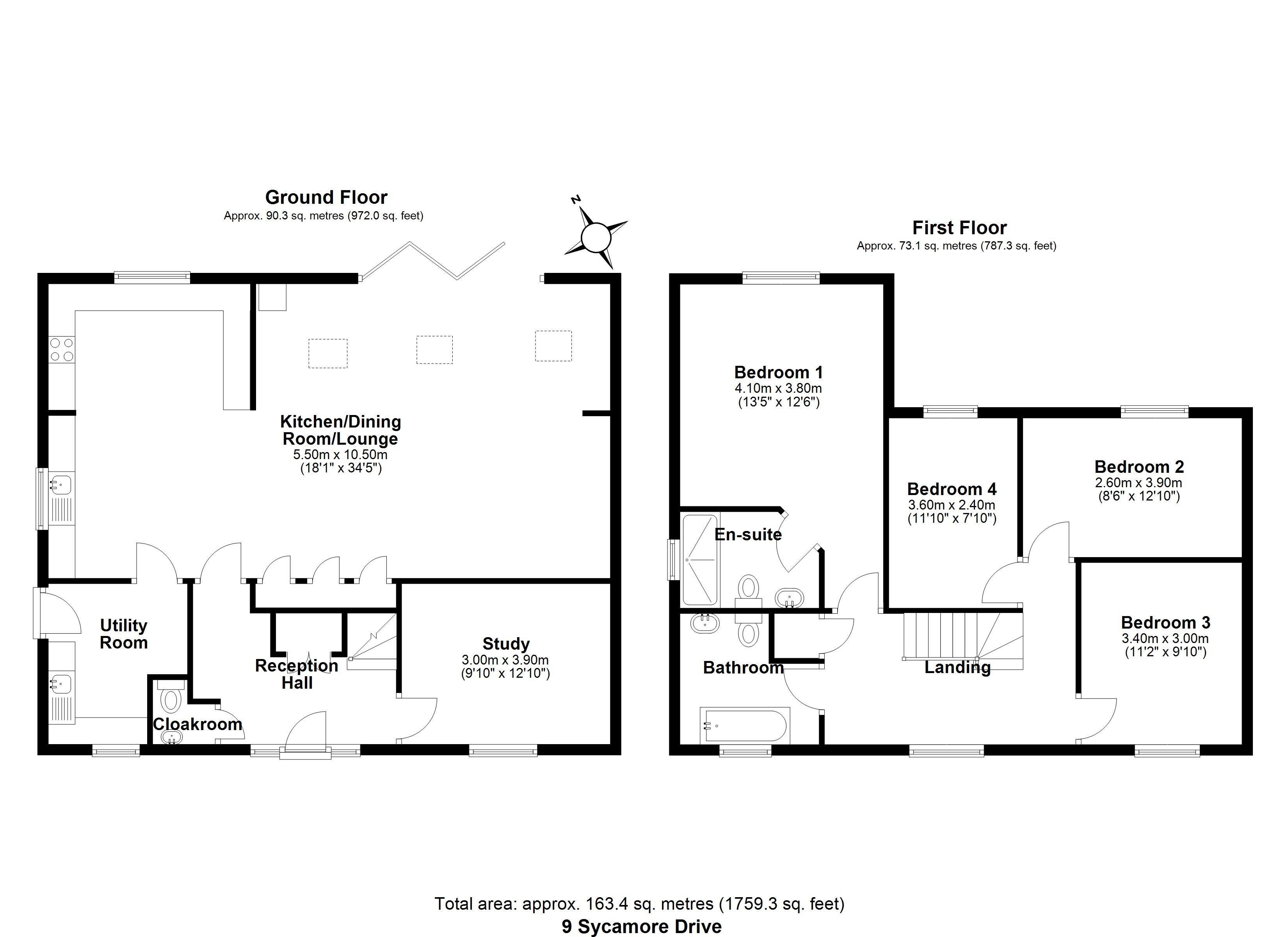
Ground Floor
Entrance Hall: Featuring a bespoke oak staircase, built-in storage, and herringbone oak flooring extending throughout much of the ground floor.

Living Area: A comfortable, traditionally styled retreat.
Open-Plan Kitchen/Dining/Living: The heart of the home, flooded with natural light from skylights and bi-fold doors opening to the garden. Fitted with gloss cabinetry, solid wood work surfaces, integrated appliances, and a feature log-burning stove, this space is ideal for family life and entertaining.
Utility Room: Practical space with appliance provision and garden access.
Cloakroom/WC: Contemporary ground-floor WC.

First Floor
Principal Bedroom: Featuring bespoke fitted wardrobes and an en suite shower room.
Three Further Bedrooms: Generously proportioned, suitable for children, guests, or a home office.
Family Bathroom: Finished with patterned floor tiles and modern fixtures.

Outside
Rear Garden: Landscaped with a paved patio and lawn, complemented by a high-quality timber garden room suitable as a home office, gym, studio, or entertainment space.
Front & Driveway: Parking for multiple vehicles with side access to the garden. The existing house benefits from planning permission for a detached double garage (Ref 24/03028/FUL).
Adjoining Building Plot: Full planning permission for a detached two-storey dwelling (Ref 24/03029/FUL), offering excellent development or multigenerational living potential.

Location – Wem & Transport Links
Wem is a historic market town in North Shropshire, approximately nine miles north of Shrewsbury. Known for its independent shops, cafés, weekly markets, and strong community spirit, the town blends rural charm with everyday convenience.

Transport:
Road: Close to the A49, connecting north–south to Shrewsbury and surrounding areas.
Rail: Wem Station offers services on the Shrewsbury–Crewe line with links to Shrewsbury, Crewe, Manchester, and South Wales.
Air: Manchester and Birmingham International Airports are approximately 1½ hours’ drive.
The location offers a perfect balance of rural tranquillity and access to larger centres.

Planning Details
Planning Ref 24/03029/FUL: Consent for a detached two-storey dwelling on the adjoining plot.
Planning Ref 24/03028/FUL: Consent for a detached double garage for the existing house, not the new plot.
These permissions clearly separate the development potential of the adjoining plot from the approved garage for the current property, enhancing the site’s appeal for developers, investors, or multigenerational living.

Key Features
• Four-bedroom detached home with high-quality contemporary finish
• Herringbone oak flooring, bespoke oak staircase, and fitted storage
• Open-plan kitchen/dining/living area with bi-fold doors and log stove
• Principal bedroom with en suite and fitted wardrobes
• Three additional bedrooms and family bathroom
• Landscaped rear garden with timber garden room
• Driveway parking with side access
• Existing house benefits from planning permission for a detached double garage (Ref 24/03028/FUL)
• Adjoining building plot with planning permission for a detached two-storey dwelling (Ref 24/03029/FUL)
• Quiet cul-de-sac location close to Wem town centre

Sales Disclaimer
"These particulars are produced in good faith and are believed to provide a fair description of the property. They do not constitute part of any contract, and prospective purchasers must satisfy themselves by inspection or otherwise of any statements contained herein. The vendors reserve the right to withdraw the property without notice. Neither the agents nor any person representing them has any authority to make or give any representation or warranty whatsoever in relation to the property

Utilities, Rights, Easements & Risks

Utility Supplies
Electricity Ask Agent
Water Ask Agent
Heating Ask Agent
Broadband Ask Agent
Sewerage Ask Agent
Rights & Restrictions
Article 4 Area Ask Agent
Listed property Ask Agent
Restrictions Ask Agent
Required access Ask Agent
Rights of Way Ask Agent
Risks
Flooded in last 5 years Ask Agent
Flood defenses Ask Agent
Flood sources Ask Agent

Additional Details

Bedrooms: 4 Bedrooms
Bathrooms: 3 Bathrooms
Receptions: 2 Receptions
Ensuites: 1 Ensuite
Kitchens: 1 Kitchen
Dining Rooms: 1 Dining Room
Garages: 1 Garage
Parking Spaces: 5 Parking Spaces

Map

Street View

Floorplans

EPC Charts

Mobile Coverage

Indoor
Provider Voice Data 4G
EE
Three
O2
Vodafone
Estimated mobile coverage provided by Ofcom for this property's postcode.
Outdoor
Provider Voice Data 4G
EE
Three
O2
Vodafone
Estimated mobile coverage provided by Ofcom for this property's postcode.

How can we help? Drop us a line, we’d love to hear from you

Welch Estate Agents - Welch Stokes Ltd 01939 232471